43 Modern

INTRODUCTION

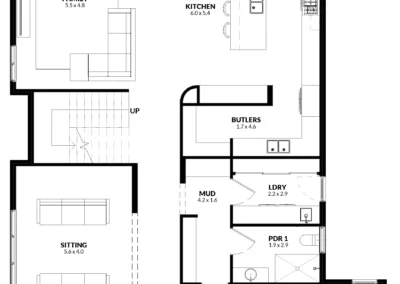
This residence spans two expansive floors, offering sophisticated living with a total area of 399.8m². The lower level is designed for grand living and entertaining, featuring an open-plan family area, a gourmet kitchen with a modern butler’s pantry, and a dedicated dining space that extends to an alfresco area. Practical amenities such as a mudroom, laundry, and a two-car garage are seamlessly integrated and thoughtfully hidden away form the main areas. Complementing these communal spaces are a private study or 5th bedroom and Theatre room, providing versatile areas for work or relaxation. The upper floor serves as a private sanctuary, housing a master suite complete with a walk-in robe and opulent ensuite, three additional spacious bedrooms (all with walk-in robes), a main bathroom, and a dedicated rumpus room, ensuring ample comfort and privacy for all.

  •  4/5 Bed
  • 3.5 Bath
  • 43.04sq

FACADES

FLOORPLAN